Our Work

All Projects

Explore our diverse portfolio of construction projects, showcasing our expertise and commitment to quality.

QMED Formulation Pvt. Ltd.

QMED Formulation Pvt. Ltd.

Assessment of existing structure with it's strengthening measures for additional loads.

Completed: 2024 View Details
Maruti Pipes Pvt. Ltd.

Maruti Pipes Pvt. Ltd.

Retrofitting of existing structure for existing and additional loads.

Completed: 2025 View Details
Hotel Saffron Pvt. Ltd.

Hotel Saffron Pvt. Ltd.

Structural assessment and design of RC and steel structures of hotel building.

Completed: 2024 View Details
Resunga Industries Pvt. Ltd.

Resunga Industries Pvt. Ltd.

Structural design of warehouse with crane loading.

Completed: 2025 View Details
Bardibas Hotel

Bardibas Hotel

Structural design of hotel building located at bardibas.

Completed: 2024 View Details
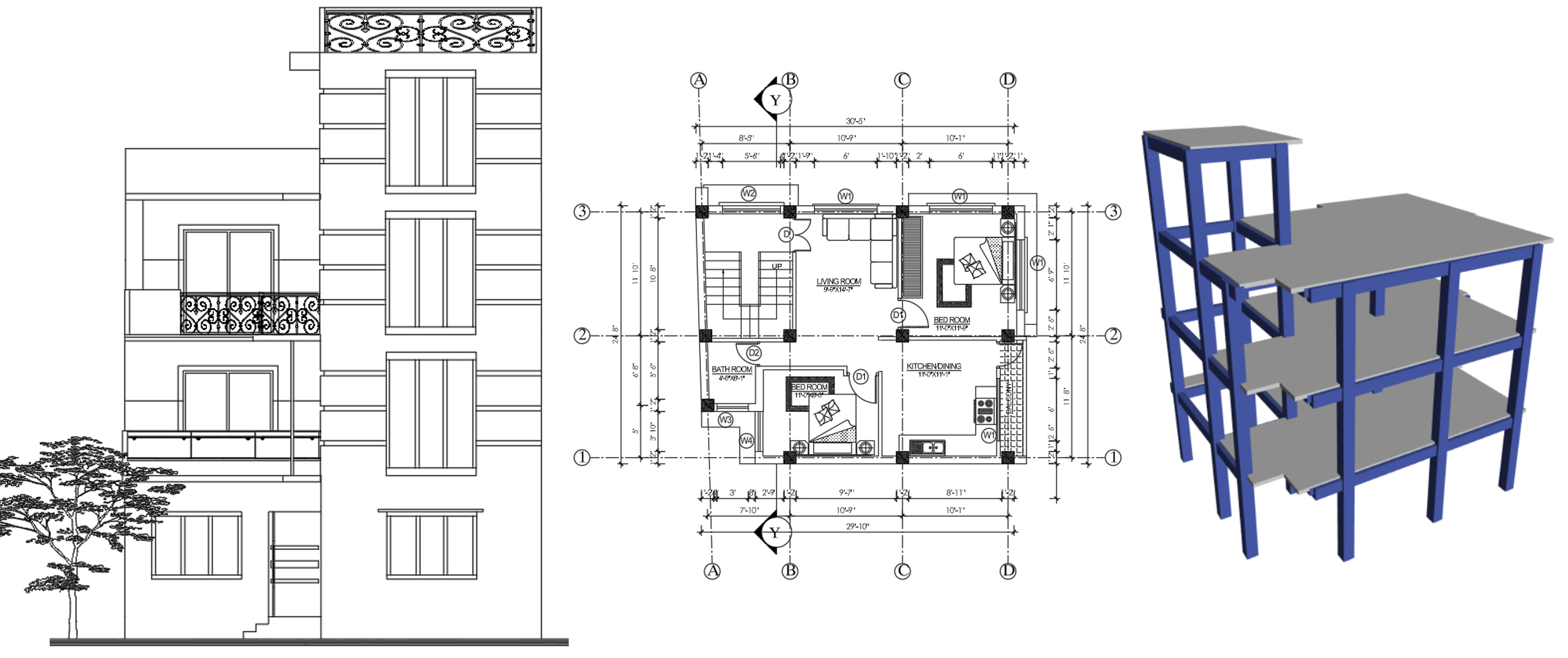
Residential Projects

Residential Projects

Complete architectural and structural design and analysis of numerous residential buildings.

Completed: Ongoing View Details